Page 116 - 广西云涌科技有限公司
P. 116

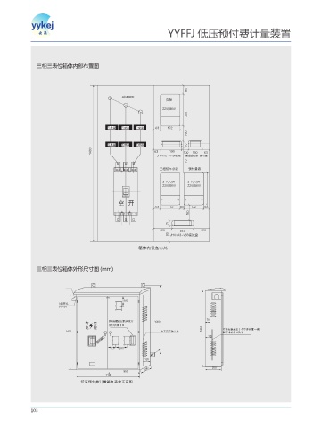
YYFFJ 低压预付费计量装置







               三相三表位箱体内部布置图





                                                ᤈጲᨶଅ
                                                                 ᠆ଌ
                                                                       7


                                          ̈ਕ٧   ̈  ਕ٧  ̈ਕ٧

                                          ̈ਕ٧   ̈ਕ٧  ̈  ਕ٧

                                                              +)7 "  7  ᤈጲᄣ  ฽ଌଋጲᄣ  ፘႂ٧

                                                               ʻᄰͯԌ঳ᛪ     ᮔ̶᠟ᛪ

                                                                       "         "
                                                                       7         7


                                               ቆध




                                                                      +)7 "  7  ଋጲᄣ

                                                      ኷ͳЮ᝹ܫ࣊ࡌ



               三相三表位箱体外形尺寸图 (mm)







                        "᭦धߗ


                                           ཛྷ. ᛂˌ̾᫸᮲ծध
                                  థ  ӿ     ᮔ̶᠟ଢӴԯ
                                  ႂ  ᬖ                                                 ቆध߶ᜈگ్὇ˀቆध᫁ऎʶಧὈ
                                                               ႂᛪ߶ᜈ࿗በಎ                 ᦠʹᬱگ్  ్ Ի
                                       ଢ઩ᛂ᧫






                                ͯԌᮔ̶᠟᝟᧙኷ႂᛪࠈൣ᭦ڎ





             103
   111   112   113   114   115   116   117   118   119   120   121