Page 103 - 广西云涌科技有限公司
P. 103

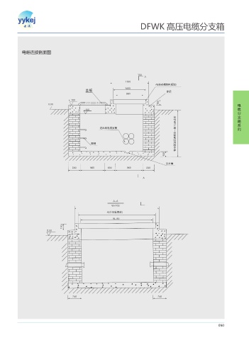
DFWK 高压电缆分支箱







            电维连接剖面图






                                                                       "

                                                                            " ۲ᆨമᨁ  ᮔ۠

                                                                                  ቇೌ


                                                                                                                    电
                                                                                                                    缆
                                                                                                                    分
                                                                                                                    支
                                                                                      Ιႂ፵۠᝹ຆऎ߿ʶᓉ   ዚࢺԾ
                                                                                                                    系
                                                 ᤈѢጲႂ፵ቇክ                                                            箱
                                                                                                                    列


                                             ྒྷ೘



                                                                                 लපമ



                                                                      "




                                                        " "
                                                       8
                                                     " ѫஂ኷ࠔऎ
                                                        8



























                                                                                                           090
   98   99   100   101   102   103   104   105   106   107   108